PROPERTY LOCATION:
PROPERTY DETAILS:
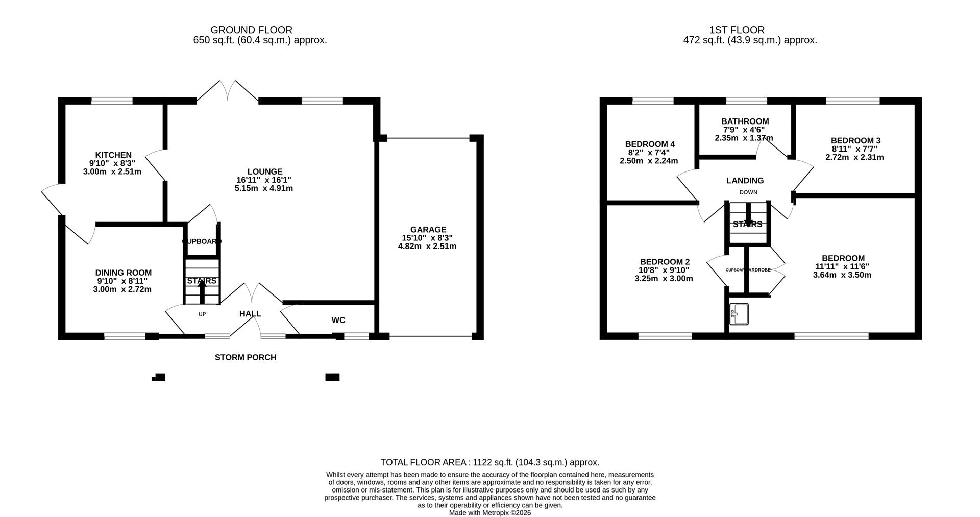
Upon entering, you will find two well-proportioned reception rooms, including a substantial lounge that features French doors and a window overlooking the beautifully maintained rear garden. The ground floor also includes a recently updated kitchen, adorned with sleek white gloss units and a convenient side door that leads to a side patio and the rear garden. A dining room and a downstairs cloakroom add to the practicality of this delightful home.
The first floor comprises four bedrooms, two of which are generous doubles. The main bedroom is particularly impressive, featuring built-in wardrobes and a corner sink, while the second bedroom also benefits from built-in storage. Bedrooms three and four are both ample singles, ensuring plenty of space for family or guests. These bedrooms are serviced by a well-appointed modern three-piece family bathroom.
The rear garden is a true highlight, offering an expansive patio area perfect for outdoor entertaining, with the remainder laid to lawn and surrounded by high-level timber fencing, providing privacy and a safe space for children to play.
Situated within walking distance of local schools and the town centre, with the added benefit of a nature reserve nearby, this property is ideal for families seeking a peaceful yet convenient lifestyle. This beautifully presented home is a must-see for anyone looking to settle in a desirable area of Ferndown.
Additional Information
Energy Performance Rating: C
Council Tax Band: E
Tenure: Freehold
Flood Risk: Very low but refer to gov.uk, check long term flood risk
Flooded in the last 5 years: No
Conservation area: No
Listed building: No
Tree Preservation Order: No
Parking: Private driveway & through garage
Utilities: Mains electricity, mains gas, mains water
Drainage: Mains sewerage
Broadband: Refer to Ofcom website
Mobile Signal: Refer to Ofcom website














