PROPERTY LOCATION:
PROPERTY DETAILS:
Nestled in a private and quiet location, surrounded by beautiful Dorset countryside, yet within a short drive of Wimborne town, this good sized plot has Planning Permission P/VOC/2025/00470
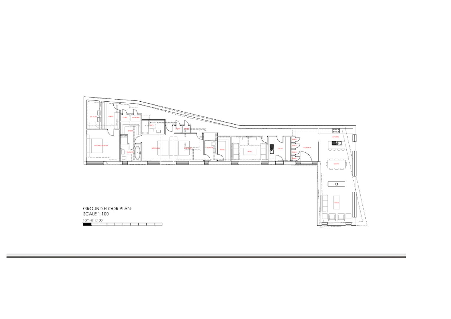
to re-model existing farm buildings on the site to create a four bedroom, single storey family home with approximately 3,000 sq.ft of accommodation.
This contemporary style property will embrace and maximise its surroundings to provide a luxuriously appointed living space - primarily open plan – overlooking the garden and views beyond.
Of the four bedrooms, three are doubles – each with an ensuite, and Bedroom four is more compact and could equally serve as a study/office. There is also a separate shower/bathroom, cloakroom and utility.
The property will be constructed to an exacting standard with high specification fixtures and fittings with choices available subject to purchase by build contract.
Images online are computer generated and illustrate the endless possibilities to create a home to suit the buyer’s specific needs. Purchase off plan and enjoy the involvement of seeing your dream home evolve. Potential to further enhance the build with outdoor facilities such as plunge pool with covered terrace, kitchen for alfresco dining – all negotiable variations for discussion.
An exciting opportunity not to be missed!










