PROPERTY LOCATION:
PROPERTY DETAILS:
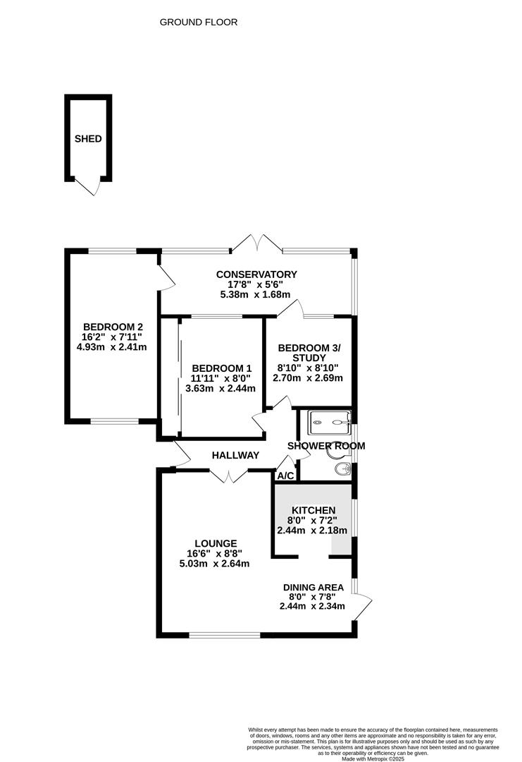
Upon entering, you are welcomed into a bright and spacious ‘L’ shaped lounge dining room, enhanced by double internal doors that invite natural light. This inviting space seamlessly connects to the kitchen, which is fitted with a range of modern eye and base level units, integrated appliances, and ample space for a large fridge/freezer and washing machine. The light wood effect luxury vinyl flooring adds a contemporary touch.
The main bedroom is a generous double, featuring a full bank of built-in wardrobes with sliding mirror fronted doors. A versatile third bedroom, currently utilised as a study, offers access to a recently updated conservatory, which boasts full UPVC double glazed windows and French doors that open to the rear garden. The second bedroom, formerly the garage and recently converted with new flat roof, has been transformed into a good-sized double room with dual aspect windows. All bedrooms are serviced by a well-appointed modern shower room, complete with a large walk-in shower cubicle, fully tiled walls and floor, vanity storage, and a heated towel rail.
Outside, the property is surrounded by beautifully maintained front and rear gardens. The rear garden features an expansive patio area, perfect for outdoor entertaining, while the remainder is predominantly laid to lawn, bordered by mature hedges and fence panels, with an 8ft x 4ft timber shed for storage nestled in the far corner. The front driveway accommodates parking for at least two vehicles, with additional on-road parking available.
Additional Information
Energy Performance Rating: D
Council Tax Band: D
Tenure: Freehold
Accessibility / Adaptations: Lateral living
Flood Risk: Very low but refer to gov.uk, check long term flood risk
Flooded in the last 5 years: No
Conservation area: No
Listed building: No
Tree Preservation Order: Yes
Parking: Private parking & street parking no permit required
Utilities: Mains electricity, mains gas, mains water
Drainage: Mains sewerage
Broadband: Refer to Ofcom website
Mobile Signal: Refer to Ofcom website
