PROPERTY LOCATION:
PROPERTY DETAILS:
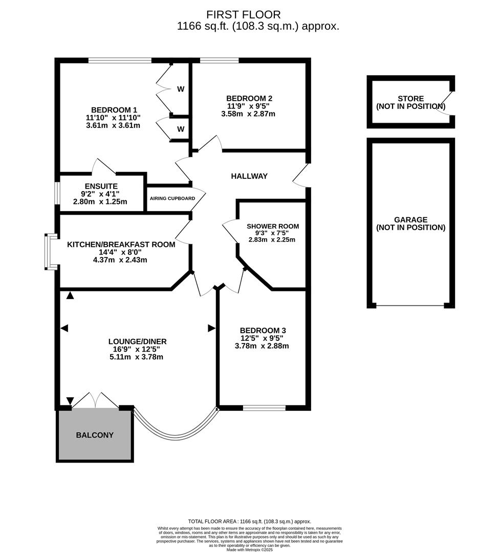
The modern kitchen, equipped with high-quality Neff appliances, including a built-in double oven, fridge/freezer, dishwasher, washing machine, and a gas hob. The bright and airy lounge/diner has double doors opening onto a private balcony, providing delightful views over the surrounding area.
This apartment boasts underfloor heating throughout, ensuring warmth and comfort during the cooler months. The property benefits from triple aspect views, allowing natural light to flood in, creating a welcoming atmosphere. Additionally, the apartment is equipped with video and telephone entry systems, enhancing security and convenience.
Externally, residents can enjoy beautifully maintained communal gardens, a private lockable store cupboard, and a communal bike storage area. A private garage with an electrically operated door adds to the convenience of this property. With no forward chain and a share of the freehold, this apartment presents an excellent opportunity for prospective buyers.
Located within easy reach of Ferndown town centre and Ferndown Championship Golf Course, this property combines the peace of suburban living with the convenience of local amenities. This beautifully presented apartment is a rare find and is sure to attract considerable interest.
Additional Information
Energy Performance Rating: B
Council Tax Band: E
Tenure: Share of Freehold with a 999 year lease
Annual Service Charge: £2,433
Lease Restrictions: Yes
Accessibility / Adaptations: lift access, lateral living
Flood Risk: Very low but refer to gov.uk, check long term flood risk
Conservation area: No
Listed building: No
Parking: Garage & communal car park no allocated space
Utilities: Mains electricity, mains gas, mains water
Drainage: Mains sewerage
Broadband: Refer to Ofcom website
Mobile Signal: The vendor uses BT WiFi calling but Refer to Ofcom website
















