PROPERTY LOCATION:
PROPERTY DETAILS:
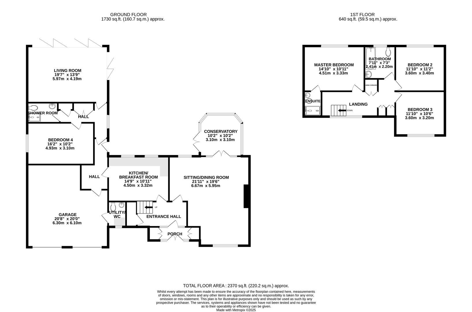
This four bedroom detached family home offers multi-generation living with potential for a separate one bedroom annex to the rear of the property, which includes a large living room, bedroom and shower room.
The main house includes a well proportioned kitchen/breakfast room with range style cooker and an “L” shaped sitting room with dining area and fitted woodburning stove within a feature brick fireplace. There is also a conservatory overlooking the rear garden.
The three good size bedrooms each have fitted wardrobes and the master bedroom benefits from an ensuite room, whilst a family bathroom serves the remaining two bedrooms.
Outside the grounds extend to almost one acre with stables. There is also a swimming pool, and a paved patio provides an ideal social space for garden furniture and alfresco dining.
Further benefits include solar panels with feed in tariff.
Located a couple of miles north of the thriving minster town of Wimborne with its varied amenities and attractions, there is a post office and village store close by. A good choice of well regarded state and public schools are within easy reach.
Additional Information
Energy Performance Rating: D
Council Tax Band: G
Tenure: Freehold
Agents Note: The vendor is not sure if planning permission was required for the pond - Edwards advise interested parties to do do their own research
Flood Risk: Low but refer to gov.uk, check long term flood risk
Flooded in the last 5 years: No
Conservation area: No
Listed building: No
Tree Preservation Order: No
Parking: Private driveway and double garage
Utilities: Mains electricity, oil heating, mains water
Drainage: Mains sewerage
Services Crossing the Property or Neighbouring Property: There is a BT pole next to the pool pump shed servicing the property & no’s 30/32 – BT have permission to access when required
Broadband: 4G and phone signal intermittent but Refer to Ofcom website
Mobile Signal: 4G and phone signal intermittent but Refer to Ofcom website
