PROPERTY LOCATION:
PROPERTY DETAILS:
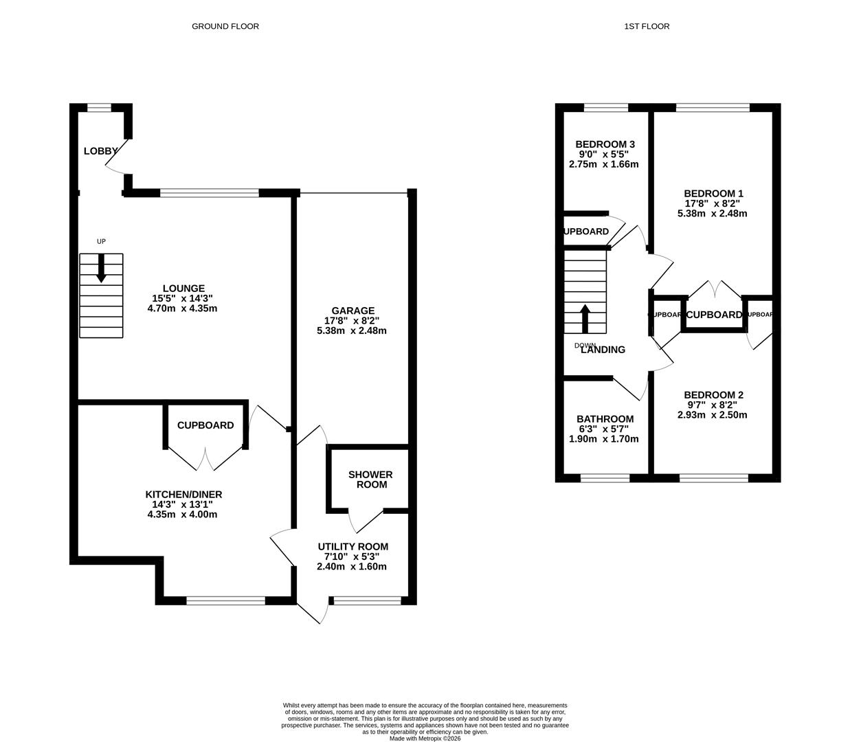
Upon entering, you are welcomed into a formal lounge that provides a warm and inviting space for relaxation. At the rear of the house, the generous kitchen/diner is perfect for family meals and entertaining, complemented by a separate utility room. A convenient downstairs shower room adds to the home's functionality, while an internal door leads to the garage, which is equipped with power and light, featuring an up-and-over door for easy access.
The rear garden is fully enclosed with high-level timber fencing, offering a private sanctuary for outdoor enjoyment. It boasts a well-maintained patio and lawn area, ideal for summer gatherings or quiet evenings.
On the first floor, you will find a well-appointed three-piece family bathroom, complete with a shower over the bath. The accommodation includes two spacious double bedrooms, both fitted with wardrobes, providing ample storage. The third bedroom is a comfortable single, also featuring a fitted wardrobe.
The property benefits from a driveway that accommodates two to three vehicles, ensuring convenience for family and guests alike. This home is a wonderful opportunity for those seeking a peaceful yet accessible location in West Moors, perfect for family living.
Additional Information
Energy Performance Rating: D
Council Tax Band: D
Tenure: Freehold
Flood Risk: Very low but refer to gov.uk, check long term flood risk
Flooded in the last 5 years: No
Conservation area: No
Listed building: No
Tree Preservation Order: No
Parking: Private driveway & garage
Utilities: Mains electricity, mains gas, mains water
Drainage: Mains sewerage
Broadband: Refer to Ofcom website
Mobile Signal: Refer to Ofcom website













