PROPERTY LOCATION:
PROPERTY DETAILS:
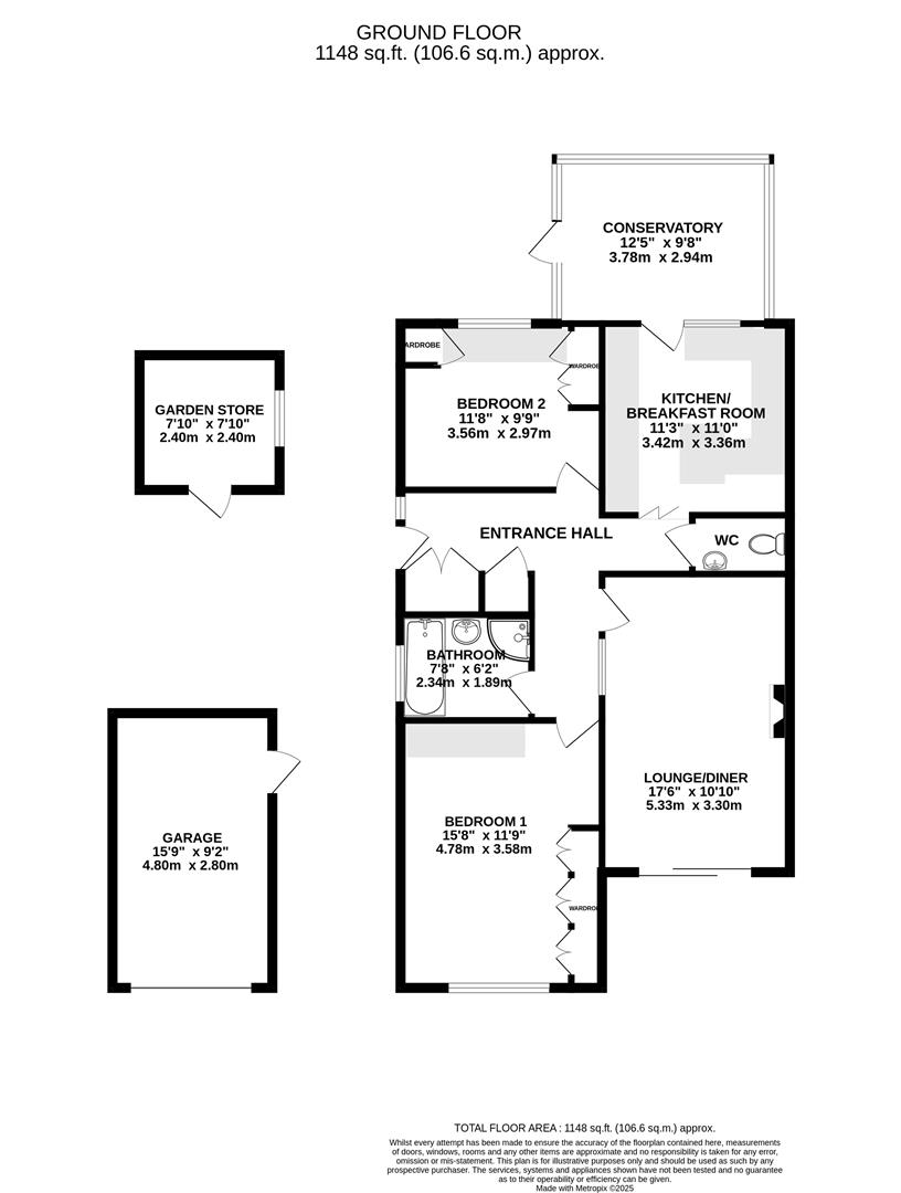
Quietly tucked away in the heart of the town centre, the main entrance to the property is on the side of the property, opening to a welcoming hallway which has a useful storage cupboard and airing cupboard. The well proportioned lounge/dining room overlooks the neatly landscaped southerly facing front garden. A feature fireplace creates a focal point and double glazed sliding doors give access to a patio with retractable sun canopy – a perfect spot to relax and enjoy the garden!
The modern kitchen is fitted with a range of base and wall units, as well as a breakfast bar and integrated appliances. Door to the rear elevation leads out to a conservatory overlooking the private rear low maintenance garden. A fitted radiator ensures all year round use.
Both double bedrooms are fitted with a generous array of wardrobes, dressing table and storage units, bedroom two has the added benefit of a space saving pull down double bed which when not in use utilises the space as a fully functioning office. Both bedrooms are served by a fully tiled bathroom which has a bath and separate shower cubicle and vanity wash basin. There is separate cloakroom off the hallway.
Outside there is a single garage with electric roller door, power and light, set to the front of the plot with driveway parking for two vehicles. There is a garden store in the rear garden which enjoys a good degree of privacy with established shrubs and fencing to all boundaries and a side gate to the rear.
Further benefits include double glazing throughout, and gas fired central heating. The property is offered with NO FORWARD CHAIN.
Additional Information
Agents Note: This is a Probate sale and information is limited. Interested parties are advised to carry out your own research
Energy Performance Rating: D
Council Tax Band: D
Tenure: Freehold
Accessibility / Adaptations: Lateral living
Flood Risk: Very low but refer to gov.uk, check long term flood risk
Flooded in the last 5 years: No
Conservation area: No
Listed building: No
Tree Preservation Order: No
Parking: Private driveway & detached garage
Utilities: Mains electricity, mains gas, mains water Agents Note: There is no Gas Safety Installation Certificate or Service Certificate available
Drainage: Mains sewerage
Broadband: Refer to Ofcom website
Mobile Signal: Refer to Ofcom website













