PROPERTY LOCATION:
PROPERTY DETAILS:
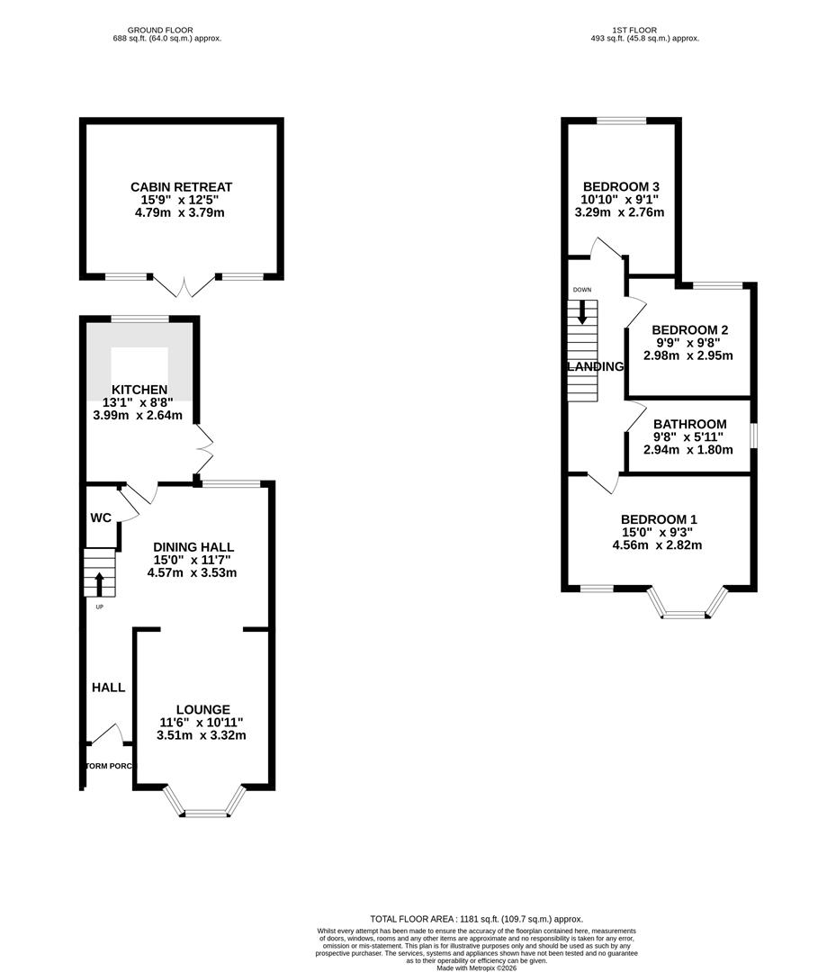
As you enter, you are greeted by a spacious open-plan lounge and dining area, featuring a delightful bay window that floods the space with natural light. The modern kitchen, located at the rear of the property, is both functional and inviting, providing easy access to the expansive west-facing garden. This outdoor space is a true highlight, boasting a large garden room equipped with power, perfect for a home office or a tranquil retreat.
The property is further enhanced by plantation shutters throughout, adding a touch of sophistication while allowing for privacy and light control. Off-road parking is also available, ensuring convenience for you and your guests.
Situated in a popular location, this home is conveniently close to local schools and shops, making it an excellent choice for families and professionals alike. With its stunning interior and spacious layout, this Victorian gem is not to be missed. Come and experience the charm and comfort that this delightful property has to offer.
Additional Information
Energy Performance Rating: TBC
Council Tax Band: C
Tenure: Freehold
Flood Risk: Very low but refer to gov.uk, check long term flood risk
Flooded in the last 5 years: No
Conservation area: No
Listed building: No
Tree Preservation Order: No
Parking: Private driveway
Utilities: Mains electricity, mains gas, mains water
Drainage: Mains sewerage
Broadband: Refer to Ofcom website
Mobile Signal: Refer to Ofcom website
PROPERTY INFORMATION:
Utility Support
Rights and Restrictions
Risks
RECENTLY VIEWED PROPERTIES :
| 2 Bedroom End of Terrace House - Cotswold Close, Verwood | £265,000 |
































