PROPERTY LOCATION:
PROPERTY DETAILS:
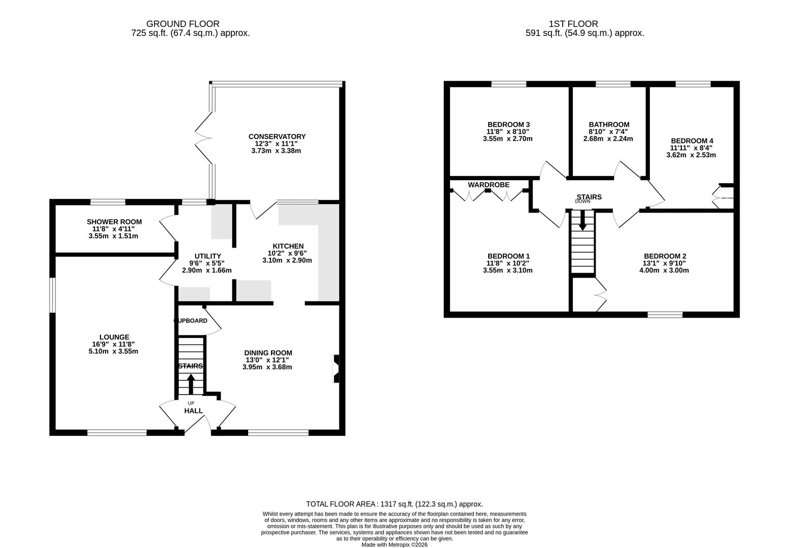
Approached across a frontage with hard standing for a number of vehicles, the main entrance door opens to a hallway with stairs immediately ahead and door to left opening to a well proportioned, dual aspect lounge. A separate dining room overlooks the front of the property with open access to the stylishly appointed kitchen which offers a generous range of base and wall units as well as integrated oven, hob and extractor. An adjoining utility room offers further storage and space for washing machine and there is also a ground floor shower room.
To the rear of the kitchen there is a good sized conservatory which in turn has French doors opening to the rear garden which is primarily paved and offers a good degree of privacy.
On the first floor there are four double bedrooms – three of which have built-in storage and a family bathroom fitted with classic bath along with semi-concealed WC and wash hand basin.
Outside, there is a substantial summerhouse to the rear of the property and the garden to the side of the property is laid mainly to lawn with some established specimen planting. Close board fencing to boundaries ensures a good degree of privacy.
Additional Information
Energy Performance Rating: D
Council Tax Band: C
Tenure: Freehold
Accessibility / Adaptations: Ground floor shower room
Flood Risk: Low but refer to gov.uk, check long term flood risk
Flooded in the last 5 years: No
Conservation area: No
Listed building: No
Tree Preservation Order: No
Parking: Private driveway
Utilities: Mains electricity, mains gas, mains water
Agents Note: Edwards are awaiting copies of the Gas Safety Installation & Electrical Certificates
Drainage: Mains sewerage
Broadband: Refer to Ofcom website
Mobile Signal: Refer to Ofcom website



















